





Vetro 524
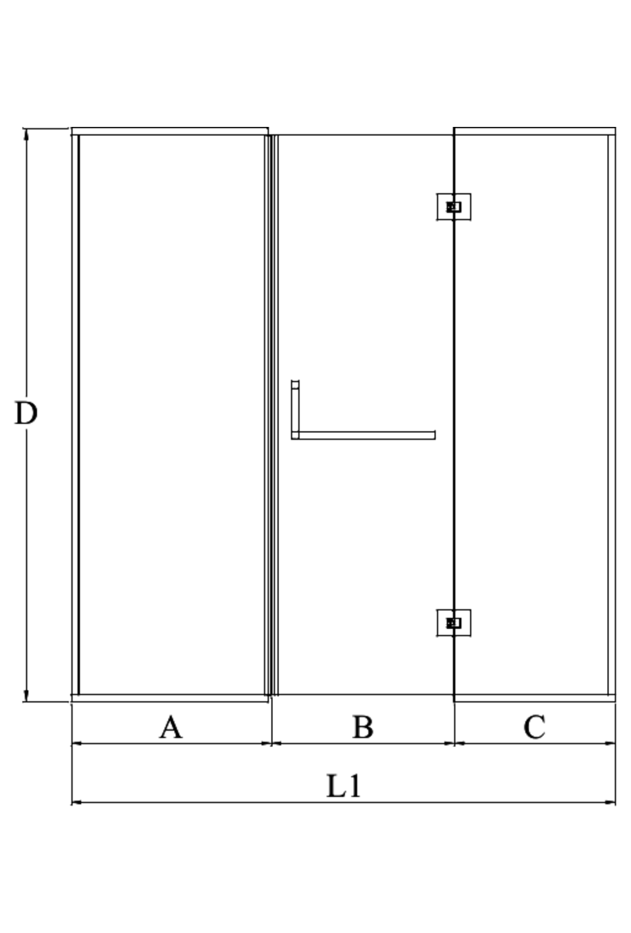
Alcove fitting with a fixed wall and hinged door which has a fixed part
The alcove fixture consists of two fixed walls, to one of which is hinged a hinged door. The product is well-suited for a shower enclosure which has fixtures located on both sides. Fixed walls can be dimensioned according to the depth of the fixtures so that when opened, the door does not hit the fixtures.
The door opens 90 degrees to the outside and is equipped with an adjustable centring. The centring tries to return the door back to the open and closed positions. A magnet seal keeps the door tightly closed during showering.
The framed wall panel is secured by screwing the frame profiles to the wall and ceiling. The glass is glued to the frame profiles and cushioned with seals. The hinged door panel is attached to the fixed panel.
20 Working days
20 year warranty
The profiles mounted to the edges of the panel are manufactured of stainless steel. The hinges of the door are manufactured of brass alloy. Surface treatment options is chrome plated.
The product is manufactured of 8 mm thick tempered safety panel (EN 12150). Glassoptions are Transparent, grey, brown, satin, super bright and black. One side of the satin glasses is etched to acquire a velvety feel and the other side is smooth. When choosing a satin glass product, bear in mind that the etched surface of the panel is sensitive to scratches and stains. The black glass is slightly see through in heavy light and almost nontransparent if the space is darker. The super bright glasses are manufactured with the iron removed, thus removing most of the green tint that glasses naturally have. Please note, that productpictures of satin glass use super bright satin of which an offer can be calculated via our customer srevice. All glasses can be treated in the factory with a Cranith calcification prevention coating. The coating enables the panel to stay clean easier.
Shower wall is manufactured according to custom measures.
Product size
The selected product can be installed into the opening the total width L1 of which is 2200mm and the total length L2 2000mm.:

The product is supplied as standard with a 33 mm high floor seal. The optional accessories are a 50 mm high floor seal for shower areas where the floor tilting is higher than normal. The length of the floor seal is 1000 mm and it is cut to a suitable length on site. The watertight quality of the product can be improved by installing a step profile under the door. The step profile is cut into a suitable length on the side and glued to the floor. The height of a shaped step profile is 10 mm and its width is 16 mm.
Product
Product code
Price
1
Vetro 524
Product code
524-21-000
Price
0.00 €
2
Alcove fixed screen
Chrome/Transparent/A=787 x 2000
Product code
516 21 0000
Price
740.00 €
3
Alcove hinged door
Chrome/Transparent/B=587 x 2000
Product code
520 21 1000
Price
650.00 €
4
Alcove fixed screen
Chrome/Transparent/C=800 x 2000
Product code
520 21 0000
Price
650.00 €
5
Framed Vetro magnet seal Chrome/Transparent
Product code
915 21 MMMM
Price
32.00 €
6
BLACK WEEKS 17.11.-1.12.2025 -30%
Product code
DISCOUNT
Price
-621.60 €
7
TOTAL
Product code
Price
1450.40 €
The selected product can be installed into the opening the total width L1 of which is 2200mm and the total length L2 2000mm.:
| EAN: |
|---|



